Mieszkanie na sprzedaż - Kraków
555 000,00 zł
Szczegóły ogłoszenia
- Powierzchnia
- 43,47 m²
- Piętro
- 2p
- Pokoje
- 3
- Sypialnie
- 2
- Łazienki
- 1
- Wysokość
- 2,5000 m
- Standard
- Rynek
- Wtórny
- Stan prawny
- JedenWlasciciel
- Balkon
- tak
OPIS
Szanowni Państwo,
mam przyjemność zaprezentować przestronne 3-pokojowe mieszkanie o powierzchni użytkowej 43,47 m2 usytuowane na 2 piętrze czteropiętrowego bloku w urokliwym Krakowie. Mieszkanie z 1976 roku położone jest na osiedlu Kazimierzowskim, które oferuje pełen wachlarz usług, miejsc edukacji i rekreacji, punktów handlowych, gastronomicznych i zielonych parków. Mieszkanie charakteryzuje się funkcjonalnym układem rozkładowym i ekspozycją północną oraz południową. To doskonała propozycja zarówno dla osób szukających własnego miejsca do życia, jak i inwestorów, którzy poszukują wygodnej bazy inwestycyjnej.
LOKALIZACJA
– Kraków, Bieńczyce, Os. Kazimierzowskie,
– atrakcyjna lokalizacja pod względem dostępu do punktów usługowych, handlowych i gastronomicznych, które znajdują się w promieniu 0,5 km od mieszkania,
– najbliższy sklep spożywczy 100 m,
– paczkomat 100 m,
– przystanek autobusowy i tramwajowy 230 m,
– przedszkole 200 m,
– park Planty Bieńczyckie 250 m,
– szkoła 400 m,
– szpital specjalistyczny im. Ludwika Rydygiera 800 m,
– centrum handlowe Nowe Czyżyny 1,3 km,
– centrum Serenada 2,8 km,
– rynek Główny 7,6 km,
– lotnisko 20 km,
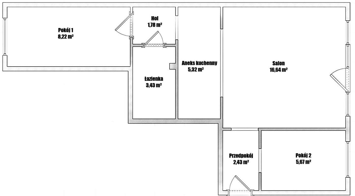
UKŁAD
Mieszkanie składa się z:
– Pokoju 1 (8,22 m2).
– Pokoju 2 (5,67 m2).
– Salonu z aneksem kuchennym (21,96 m2).
– Łazienki (3,43 m2).
– Przedpokoju (2,43 m2).
– Holu (1,78 m2).
DODATKOWE INFORMACJE
Mieszkanie obecnie wymaga remontu oraz zostało opróżnione z zbędnych rzeczy. Serce mieszkania stanowi przestronny salon z aneksem kuchennym, który jest idealny do spędzania wspólnego czasu. Duże okno sprawia, że wnętrze jest jasne i ciepłe, a układ pomieszczenia pozwala na łatwe zaaranżowanie zarówno części wypoczynkowej, jak i jadalnej.
Dwa dodatkowe pokoje mogą pełnić funkcję sypialni, gabinetu, pokoju dziecięcego lub przestrzeni do hobby. Do mieszkania przynależy komórka lokatorska, co stanowi dodatkową przestrzeń do przechowywania rzeczy.
OPŁATY/MEDIA
– czynsz obejmuje zimną, ciepłą wodę, wywóz nieczystości, centralne ogrzewanie, administrację, eksploatacje i fundusz remontowy.
– prąd i gaz według zużycia.
W ramach swoich usług pomagam uzyskać finansowanie w zakupie nieruchomości oraz oferuję bezpieczne przeprowadzenie przez cały proces transakcji.
W razie jakichkolwiek pytań jestem do dyspozycji.
Zapraszam do kontaktu i oczywiście na prezentację.
Informacje dodatkowe
- Symbol
- PNB-MS-13653
- Stan lokalu
- do generalnego remontu
- Rodzaj mieszkania
- Jednopoziomowe
- Usytuowanie
- trójstronne
- Rozkład
- rozkładowe
- Okna
- PCV
Budynek i otoczenie
- Rok budowy
- 1976
- Ilość pięter w budynku
- 4
- Winda
- nie
- Dozór budynku
- brak
- Docieplenie
- Styropian
- Otoczenie
- osiedle
Opłaty
- Miesięczny czynsz admin.
- 500 zł
- Czynsz zimowy
- 500 zł
- Opłaty w czynszu
- wywóz nieczystości, woda ciepła, woda, fundusz remontowy, Części wspólne, CO, administracja
Wyposażenie
- Instalacje
- niewymienione
- Ogrzewanie
- C.O. miejskie
- Gaz
- jest
- Woda
- ciepła - miejska





















